Технология монтажа водяного теплого пола

Наиболее распространенным способом реализации систем напольного отопления являются монолитные бетонные полы, выполненные так называемым “мокрым” методом. Конструкция пола представляет из себя “слоеный пирог” из различных материалов (рис.1).


Рис.1 Укладка петель теплого пола одиночным змеевиком

 

Монтаж системы теплых полов начинается с подготовки поверхности под монтаж теплого пола. Поверхность должна быть выровнена, неровности по площади не должны превышать ±5 мм. Допускаются неровности и выступы не более 10 мм. При необходимости поверхность выравнивается дополнительной стяжкой. Нарушение этого требования может привести к “завоздушиванию” труб. Если в расположенном ниже помещении повышенная влажность желательно уложить гидроизоляцию (полиэтиленовая пленка).

После выравнивания поверхности необходимо вдоль боковых стен уложить демпферную ленту шириной не менее 5мм для компенсации теплового расширения монолита теплого пола. Она должна быть уложена вдоль всех стен, обрамляющих помещение, стоек, дверных коробок, отводов и т.п. Лента должна выступать над запланированной высотой конструкции пола минимум на 20 мм.

После чего укладывается слой теплоизоляции для предотвращения утечки тепла в нижние помещения. В качестве термоизоляции рекомендуется использовать вспененные материалы (полистирол, полиэтилен и т.д.) плотностью не менее 25 кг/м3. Если невозможно уложить толстые слои теплоизоляции, то в этом случае применяются фольгированные теплоизоляционные материалы толщиной 5 или 10 мм. Важно, чтобы фольгированные теплоизоляционные материалы имели защитную пленку на алюминии. В противном случае, щелочная среда бетонной стяжки разрушает фольгированный слой в течение 3–5 недель.


Раскладка труб

Осуществляется с определенным шагом и в нужной конфигурации. При этом рекомендуется подающий трубопровод следует укладывать ближе к наружным стенам.

При укладке “одиночный змеевик” (рис.2) распределение температуры поверхности пола не равномерное.


Рис.2 Укладка петель теплого пола одиночным змеевиком

 

При спиральной укладке (рис.3), трубы с противоположными направлениями потоков чередуются, причем наиболее горячий участок трубы соседствует с наиболее холодным. Это приводит к равномерному распределению температуры по поверхности пола.


Рис.3 Укладка петель теплого пола спиралью.

 

Укладка трубы производится по разметке, нанесенной на теплоизолятор, якорными скобами через 0.3 - 0.5 м, либо между специальными выступами теплоизолятора. Шаг укладки рассчитывается и лежит в пределах от 10 до 30 см, но не должен превышать 30 см иначе возникнет неравномерный нагрев поверхности пола с появлением теплых и холодных полос. Области вблизи наружных стен здания называют граничными зонами. Здесь рекомендуется уменьшать шаг укладки трубы, для того чтобы компенсировать потери тепла через стены. Длина одного контура (петли) теплого пола не должна превышать 100–120 м, потери давления на одну петлю (вместе с арматурой) не более 20 кПа; минимальная скорость движения воды – 0,2 м/с (во избежание образования в системе воздушных пробок).

После раскладки петель, непосредственно перед заливкой стяжки, производится опрессовка системы при давлении 1.5 от рабочего, но не менее 0.3 МПа.

При заливке цементно-песочной стяжки труба должна находиться под давлением воды 0,3 МПа при комнатной температуре. Минимальная высота заливки над поверхностью трубы должна быть не менее 3 см (максимальная рекомендуемая высота, по европейским нормам - 7 см). Цементно-песчаная смесь должна быть не ниже марки 400 с пластификатором. После заливки стяжку рекомендуется «провибрировать». При длине монолитной плиты более 8 м или площади больше 40 м2 необходимо предусмотреть швы между плитами минимальной толщиной 5 мм, для компенсации теплового расширения монолита. При прохождении труб через швы они должны иметь защитную оболочку длиной не менее 1 м.

Пуск системы осуществляется только после полного высыхания бетона (примерно 4 дня на 1 см толщины стяжки). Температура воды при пуске системы должна быть комнатной. После пуска системы ежедневно увеличивать температуру подаваемой воды на 5°С до рабочей температуры.

 

Основные температурные требования к системам теплых полов

    Рекомендуется среднюю температуру поверхности пола принимать не выше (согласно СНиП 41-01-2003, п. 6.5.12):
  • 26°С для помещений с постоянным пребыванием людей
  • 31°С для помещений с временным пребыванием людей и обходных дорожек плавательных бассейнов
  • Температура поверхности пола по оси нагревательного элемента в детских учреждениях, жилых зданиях и плавательных бассейнах не должна превышать 35°С

Согласно СП 41-102-98 перепад температуры на отдельных участках пола не должен превышать 10°С (оптимально 5°С). Температура теплоносителя в системе теплых полов не должна превышать 55°С (СП 41-102-98 п. 3.5 а).

 

Комплект водяного теплого пола на 15 м2

Комплект теплого пола для обогрева помещений площадью 15-20 м2 со смесительным узлом с ручной регулировкой температуры теплоносителя на основе смесительно – разделительного клапана MIX 03. Настройка рабочей температуры теплоносителя осуществляется вручную поворотом рукоятки клапана.

При спиральной укладке петли теплого пола (толщина стяжки 3 см с напольным покрытием из керамической плитки) с шагом 15-20 см и расчетной температуре теплоносителя 30°С – температура поверхности пола 24-26°С, расход теплоносителя около 0,2 м3/ч, скорость течения 0,2-0,5 м/с, потери давления в петле приблизительно 5 кПа (0,5 м).

Точный расчет тепловых и гидравлических параметров можно провести с использованием бесплатной программы расчетов теплых полов Valtec Prog.

Наименование Артикул Кол.-во Стоимость
МП труба ValtecV1620100 м3 580
ПластификаторTHZ.P.102х10 л1 611
Лента демпфернаяTHZ.LD.100.01.25
2х10 м1 316
ТеплоизоляцияVT.HS.FP.0312 18 м22 648
Трехходовой смесительный клапанVT.MIX03.G.05 ¾”11 400
Циркуляционный насосUPC 25-4012 715
Ниппель-переходникVT 580 1”х3/4”156.6
Ниппель-переходникVT 580 1”х1/2”156.6
Кран шаровойVT 218 ½”193.4
Соединитель прямой с переходом на внутреннюю резьбуVTm 302 16х ½”2135.4
Кран шаровойVT 219 ½”193.4
ТройникVT 130 ½”163.0
БочонокVT 652 ½”х60163.0
Переходник Н-ВVT 581 ¾”х ½”130.1
Итого

13 861.5

 

 

 

Комплект водяного теплого пола на 15 м2 (с усиленной теплоизоляцией, при неотапливаемых нижних помещениях)

Комплект теплого пола для обогрева помещений площадью 15-20 м2 со смесительным узлом с ручной регулировкой температуры теплоносителя на основе смесительно – разделительного клапана MIX 03. Настройка рабочей температуры теплоносителя осуществляется вручную поворотом рукоятки клапана. Усиленная теплоизоляция позволяет устраивать систему теплых полов над неотапливаемыми помещениями.

При спиральной укладке петли теплого пола (толщина стяжки 3 см с напольным покрытием из керамической плитки) с шагом 15-20 см и расчетной температуре теплоносителя 30°С – температура поверхности пола 24-26°С, расход теплоносителя около 0,2 м3/ч, скорость течения 0,2-0,5 м/с, потери давления в петле приблизительно 5 кПа (0,5 м).

Точный расчет тепловых и гидравлических параметров можно провести с использованием бесплатной программы расчетов теплых полов Valtec Prog.

Наименование Артикул Кол.-во Стоимость
МП труба ValtecV1620100 м3 580
ПластификаторTHZ.P.102х10 л1 611
Лента демпфернаяTHZ.LD.100.01.252х10 м1 316
ТеплоизоляцияVT.HS.FP.03123х5 м24 281
Трехходовой смесительный клапанVT.MIX03.G.05 ¾”11 400
Циркуляционный насосUPC 25-4012 715
Ниппель-переходникVT 580 1”х3/4”156.6
Ниппель-переходникVT 580 1”х1/2”156.6
Кран шаровойVT 218 ½”193.4
Соединитель прямой с переходом на внутреннюю резьбуVTm 302 16х ½”2135.4
Кран шаровойVT 219 ½”193.4
ТройникVT 130 ½”163.0
БочонокVT 652 ½”х60163.0
Переходник Н-ВVT 581 ¾”х ½”130.1
Итого

15 494.5

 

 

 

Комплект водяного теплого пола до 30 м2 - 1

Комплект теплого пола для обогрева помещений площадью 30-40 м2 со смесительным узлом с ручной регулировкой температуры теплоносителя на основе смесительно – разделительного клапана MIX 03. Настройка рабочей температуры теплоносителя осуществляется вручную поворотом рукоятки клапана. Для обеспечения равного расхода теплоносителя в петлях теплого пола их длинна и схема укладки должны быть одинаковы.

При спиральной укладке петли теплого пола (толщина стяжки 3 см с напольным покрытием из керамической плитки) с шагом 15-20 см и расчетной температуре теплоносителя 30°С – температура поверхности пола 24-26°С, расход теплоносителя около 0,2 м3/ч, скорость течения 0,2-0,5 м/с, потери давления в петле приблизительно 5 кПа (0,5 м).

Точный расчет тепловых и гидравлических параметров можно провести с использованием бесплатной программы расчетов теплых полов Valtec Prog.

Наименование Артикул Кол.-во Стоимость
МП труба ValtecV1620200 м7 160
ПластификаторTHZ.P.104х10 л3 222
Лента демпфернаяTHZ.LD.100.01.253х10 м1 974
ТеплоизоляцияVT.HS.FP.03122х18 м25 296
Трехходовой смесительный клапанVT.MIX03.G.05 ¾”11 400
Ниппель-переходникVT 580 1”х3/4”2113.2
НиппельVT 582 3/4”130.8
ТройникVT 130 ¾”196.7
УгольникVT 93 ¾”1104.9
Сгон прямойVT 341 ¾”1104.9
Циркуляционный насосUPC 25-4012 715
Кран шаровойVT 217 ¾”2266.4
КоллекторVT 500n 2 вых.х ¾”х ½”2320
ПробкаVT 583 ¾”261.6
Фитинг для МП трубыVT 710 16(2,0)4247.6
Фитинг для МП трубыVTm 301 20 х ¾”192.4
Фитинг для МП трубыVTm 302 20 х ¾”1101.0
Итого

23 306.5

 

 

 

Комплект водяного теплого пола до 30 м2 - 2

Комплект теплого пола для обогрева помещений площадью 30-40 м2 со смесительным узлом с ручной регулировкой температуры теплоносителя на основе смесительно – разделительного клапана MIX 03. Настройка рабочей температуры теплоносителя осуществляется вручную поворотом рукоятки клапана. Для облегчения выпуска воздуха система дополнена автоматическими воздухоотводчиками и дренажными клапанами. Для обеспечения равного расхода теплоносителя в петлях теплого пола их длинна и схема укладки должны быть одинаковы. Усиленная теплоизоляция позволяет устраивать систему теплых полов над неотапливаемыми помещениями.

При спиральной укладке петли теплого пола (толщина стяжки 3 см с напольным покрытием из керамической плитки) с шагом 15-20 см и расчетной температуре теплоносителя 30°С – температура поверхности пола 24-26°С, расход теплоносителя около 0,2 м3/ч, скорость течения 0,2-0,5 м/с, потери давления в петле приблизительно 5 кПа (0,5 м).

Точный расчет тепловых и гидравлических параметров можно провести с использованием бесплатной программы расчетов теплых полов Valtec Prog.

Наименование Артикул Кол.-во Стоимость
МП труба ValtecV1620200 м7 160
ПластификаторTHZ.P.104х10 л3 222
Лента демпфернаяTHZ.LD.100.01.253х10 м1 974
ТеплоизоляцияVT.HS.FP.03126х5 м28 562
Трехходовой смесительный клапанVT.MIX03.G.05 ¾”11 400
Ниппель-переходникVT 580 1”х3/4”2113.2
НиппельVT 582 3/4”130.8
ТройникVT 130 ¾”196.7
УгольникVT 93 ¾”1104.9
Сгон прямойVT 341 ¾”1104.9
Циркуляционный насосUPC 25-4012 715
Кран шаровойVT 217 ¾”2266.4
КоллекторVT 500n 2 вых.х ¾”х ½”2320
Фитинг для МП трубыVT 710 16(2,0)4247.6
Фитинг для МП трубыVTm 302 20 х ¾”1101
Фитинг для МП трубыVTm 301 20 х ¾”192.4
Тройник коллекторный для монтажа воздухоотводчика и дренажного клапанаVT 530 3/4”х 1/2”х3/8”2238.4
Отсекающий клапанVT 539 3/8”297.4
Переходник В-НVT 592 1/2”х3/8”249.4
Воздухоотводчик автоматическийVT 502 1/2”2320.8
Кран дренажныйVT 430 1/2”2209.8
Итого

27 446.7

 

 

 

Комплект водяного теплого пола до 60 м2 - 1

Комплект теплого пола для обогрева помещений площадью 60-80 м2 со смесительным узлом с ручной регулировкой температуры теплоносителя на основе смесительно – разделительного клапана MIX 03. Настройка рабочей температуры теплоносителя осуществляется вручную поворотом рукоятки клапана. Для облегчения выпуска воздуха система дополнена автоматическими воздухоотводчиками и дренажными клапанами. Для обеспечения равного расхода теплоносителя в петлях теплого пола (гидравлической балансировки петель) используются коллектора с интегрированными отсекающими и регулирующими кранами. Усиленная теплоизоляция позволяет устраивать систему теплых полов над неотапливаемыми помещениями.

При спиральной укладке петли теплого пола (толщина стяжки 3 см с напольным покрытием из керамической плитки) с шагом 15-20 см и расчетной температуре теплоносителя 30°С – температура поверхности пола 24-26°С, расход теплоносителя около 0,2 м3/ч, скорость течения 0,2-0,5 м/с, потери давления в петле приблизительно 5 кПа (0,5 м).

Точный расчет тепловых и гидравлических параметров можно провести с использованием бесплатной программы расчетов теплых полов Valtec Prog.

Наименование Артикул Кол.-во Стоимость
МП труба ValtecV1620400 м14 320
ПластификаторTHZ.P.108х10 л6 444
Лента демпфернаяTHZ.LD.100.01.256х10 м3 948
ТеплоизоляцияVT.HS.FP.031212х5 м217 124
Трехходовой смесительный клапанVT.MIX03.G.05 ¾”11 400
Ниппель-переходникVT 580 1”х3/4”2113.2
НиппельVT 582 3/4”130.8
ТройникVT 130 ¾”196.7
УгольникVT 93 ¾”1104.9
Сгон прямойVT 341 ¾”1104.9
Циркуляционный насосUPC 25-4012 715
Кран шаровойVT 217 ¾”2266.4
КоллекторVT 560n 4 вых.х ¾”х ½”1632.9
КоллекторVT 580n 2 вых.х ¾”х ½”2741.8
Фитинг для МП трубыVT 710 16(2,0)8495.2
Фитинг для МП трубыVTm 302 20 х ¾”1101
Фитинг для МП трубыVTm 301 20 х ¾”192.4
Тройник коллекторный для монтажа воздухоотводчика и дренажного клапанаVT 530 3/4”х 1/2”х3/8”2238.4
Отсекающий клапанVT 539 3/8”297.4
Переходник В-НVT 592 1/2”х3/8”249.4
Воздухоотводчик автоматическийVT 502 1/2”2320.8
Кран дренажныйVT 430 1/2”2209.8
Кронштейн для коллектораVT 130 3/4”2266.4
Итого


 

 

 

Комплект водяного теплого пола до 60 м2 - 2. (автоматическое регулирование температуры)

Комплект теплого пола для обогрева помещений площадью 60-80 м2 со смесительным узлом с ручной регулировкой температуры теплоносителя на основе смесительно – разделительного клапана MIX 03. Настройка рабочей температуры теплоносителя осуществляется автоматически сервоприводом клапана в зависимости от величины температуры теплоносителя установленной по шкале накладного термостата. Для облегчения выпуска воздуха система дополнена автоматическими воздухоотводчиками и дренажными клапанами. Для обеспечения равного расхода теплоносителя в петлях теплого пола (гидравлической балансировки петель) используются коллектора с интегрированными отсекающими и регулирующими кранами. Усиленная теплоизоляция позволяет устраивать систему теплых полов над неотапливаемыми помещениями.

При спиральной укладке петли теплого пола (толщина стяжки 3 см с напольным покрытием из керамической плитки) с шагом 15-20 см и расчетной температуре теплоносителя 30°С – температура поверхности пола 24-26°С, расход теплоносителя около 0,2 м3/ч, скорость течения 0,2-0,5 м/с, потери давления в петле приблизительно 5 кПа (0,5 м).

Точный расчет тепловых и гидравлических параметров можно провести с использованием бесплатной программы расчетов теплых полов Valtec Prog.

Наименование Артикул Кол.-во Стоимость
МП труба ValtecV1620400 м14 320
ПластификаторTHZ.P.108х10 л6 444
Лента демпфернаяTHZ.LD.100.01.256х10 м3 948
ТеплоизоляцияVT.HS.FP.0312
12х5 м217 124
Трехходовой смесительный клапанVT.MIX03.G.05 ¾”11 400
Ниппель-переходникVT 580 1”х3/4”2113.2
НиппельVT 582 3/4”130.8
ТройникVT 130 ¾”196.7
УгольникVT 93 ¾”1104.9
Сгон прямойVT 341 ¾”1104.9
Циркуляционный насосUPC 25-4012 715
Кран шаровойVT 217 ¾”2266.4
КоллекторVT 560n 4 вых.х ¾”х ½”1632.9
КоллекторVT 580n 2 вых.х ¾”х ½”2741.8
Фитинг для МП трубыVT 710 16(2,0)8495.2
Фитинг для МП трубыVTm 302 20 х ¾”1101
Фитинг для МП трубыVTm 301 20 х ¾”192.4
Тройник коллекторный для монтажа воздухоотводчика и дренажного клапанаVT 530 3/4”х 1/2”х3/8”2238.4
Отсекающий клапанVT 539 3/8”297.4
Переходник В-НVT 592 1/2”х3/8”249.4
Воздухоотводчик автоматическийVT 502 1/2”2320.8
Кран дренажныйVT 430 1/2”2209.8
Сервомотор для смесительного клапанаNR 23013 919
Термостат регулирующий накладнойEM 5481550.3
Кронштейн для коллектораVT 130 3/4”2266.4
Итого


 

 

 

Комплект водяного теплого пола до 60 м2 - 3. (автоматическое регулирование температуры)

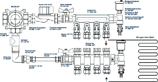
Комплект теплого пола для обогрева помещений площадью 60-80 м2 со смесительным узлом с ручной регулировкой температуры теплоносителя на основе смесительно – разделительного клапана MIX 03. Настройка рабочей температуры теплоносителя осуществляется автоматически сервоприводом клапана в зависимости от величины температуры теплоносителя установленной по шкале накладного термостата. В системе используется коллекторный блок с регулирующими клапанами с расходомерами (опция), для обеспечения равного расхода теплоносителя в петлях теплого пола (гидравлической балансировки петель). Использование коллекторного регулируемого байпаса позволяет перенаправить поток теплоносителя от подающего к обратному коллектору в случае, когда расход через коллекторные петли уменьшается ниже значения, установленного на перепускном клапане байпаса. Это позволяет сохранять гидравлические характеристики коллекторной системы независимо от воздействия органов управления коллекторных петель (ручные, термостатические клапаны или сервоприводы).

При спиральной укладке петли теплого пола (толщина стяжки 3 см с напольным покрытием из керамической плитки) с шагом 15-20 см и расчетной температуре теплоносителя 30°С – температура поверхности пола 24-26°С, расход теплоносителя около 0,2 м3/ч, скорость течения 0,2-0,5 м/с, потери давления в петле приблизительно 5 кПа (0,5 м).

Точный расчет тепловых и гидравлических параметров можно провести с использованием бесплатной программы расчетов теплых полов Valtec Prog.

Наименование Артикул Кол.-во Стоимость
МП труба ValtecV1620400 м14 320
ПластификаторTHZ.P.108х10 л6 444
Лента демпфернаяTHZ.LD.100.01.256х10 м3 948
ТеплоизоляцияVT.HS.FP.031212х5 м217 124
Трехходовой смесительный клапанVT.MIX03.G.05 ¾”11 400
Сгон прямой В-НVT 341 1”1189.4
Циркуляционный насосUPC 25-4012 715
Кран шаровойVT 219 1”3733.5
Блок коллекторный 1**VT 594 MNX 4х 1”14 036.1
Блок коллекторный 2**VT 595 MNX 4х 1”15 714.8
Байпас тупиковый *VT 6661884.6
Фитинг для МП трубы евроконусVT TA 4420 16(2,0)х¾”8549.6
ТройникVT 130 1”1177.2
Сервомотор для смесительного клапанаNR 23013 919
Термостат регулирующий накладнойEM 5481550.3
Итого 1

56 990.7
Итого 2

58 669.4

 

* - опция

** - на выбор

 

 

Комплект водяного теплого пола площадью более 60 м2. (насосно-смесительный узел Combimix)

Комплект теплого пола для обогрева помещений площадью более 60 м2 с насосно- смесительным узлом с автоматическим поддержанием температуры теплоносителя. Максимальная мощность системы теплых полов 20 кВт. В системе используется коллекторный блок с регулирующими клапанами с расходомерами (опция), для обеспечения равного расхода теплоносителя в петлях теплого пола (гидравлической балансировки петель).

Точный расчет тепловых и гидравлических параметров петель теплого пола можно провести с использованием бесплатной программы расчетов теплых полов Valtec Prog.

Наименование Артикул Кол.-во Стоимость
МП труба ValtecV1620от площади
ПластификаторTHZ.P.10от площади
Лента демпфернаяTHZ.LD.100.01.25от площади
ТеплоизоляцияVT.HS.FP.0312от площади
Насосно-смесительный узелVT.COMBI
19 010
Циркуляционный насос 1**Wilo Star RS 25/413 551
Циркуляционный насос 2**Wilo Star RS 25/614 308
Кран шаровойVT 219 1”2489
Блок коллекторный 1**VT 594 MNX1от площади
Блок коллекторный 2**VT 595 MNX1от площади
Фитинг для МП трубы евроконусVT TA 4420 16(2,0)х¾”от площади (1)
Сервопривод *VT TE 304011 058.47
Термостат программируемый *F15112 940
Термостат электромеханический *F2571604.3

 

* - опция

** - на выбор